138 Edge Park Cr
Winnipeg, Manitoba, R3Y0X8, Canada
Property Details
This property might be sold, please contact us to verify.Please do not visit without confirmation.
Approx. price(Mar 2019):
$436,120
| Building type: | House |
| Building style: | Bungalow |
| Storeys: | 1 |
| Land Size: | 42 x 111 |
| Floor Space: | 1426 sqft |
| Bathrooms: | 2 |
| Bedrooms: | 3 |
| Parking Type: | Attached garage |
| Heating Type / Fuel: | Forced air (Natural gas) |
| Water: | Municipal water |
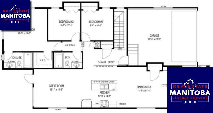
Property Description
House for sale in Winnipeg located in 138 Edge Park Cr , Manitoba, R3Y0X8, Canada. This House have 3 bedrooms and 2 bathrooms. This property listing building style is Bungalow. For all the rest of the information we have about this property in Winnipeg , see above.
Construction is already started and the home is framed with possession expected in early summer of 2019. This 1426sqft open concept 3 bedroom home by Ventura Custom Homes features 9ft ceilings to the Main Living area, 3 wide patio door which makes the rear wall almost all glass, pot lights to the Great Room and Kitchen and pendant lights over the Kitchen Island. Also included in the home are a walk-in shower in the Ensuite, cantilever for a future entertainment unit, microwave range hood fan, under cabinet lighting, delta wrap to the basement and much more. All interior color selections including flooring, cabinets and paint colors are still yours to make. Customize the interior of your home the way you want it. Be the first person in this stunning new design.
Similar Properties for 138 Edge Park Cr
$554,277
Show a short description of the House
House$529,900
Show a short description of the House
House$619,900
Show a short description of the House
House$453,171
Show a short description of the House
House, BungalowTell Me More About This Property
(Do not visit real estate objects without first agreeing on a visit)Property on Map
138 Edge Park Cr, Winnipeg, Manitoba, R3Y0X8, Canada




